Der Rossendorfer Forschungsreaktor (RFR) war ein Forschungsreaktor, der von 1957 bis 1991 am damaligen Zentralinstitut für Kernforschung in Dresden-Rossendorf betrieben wurde. Er war der erste Kernreaktor der DDR und mit einer Leistung von 10 MW auch der leistungsstärkste Forschungsreaktor des Landes. Seit 2001 erfolgt der Rückbau durch den VKTA - Strahlenschutz, Analytik & Entsorgung Rossendorf e. V..
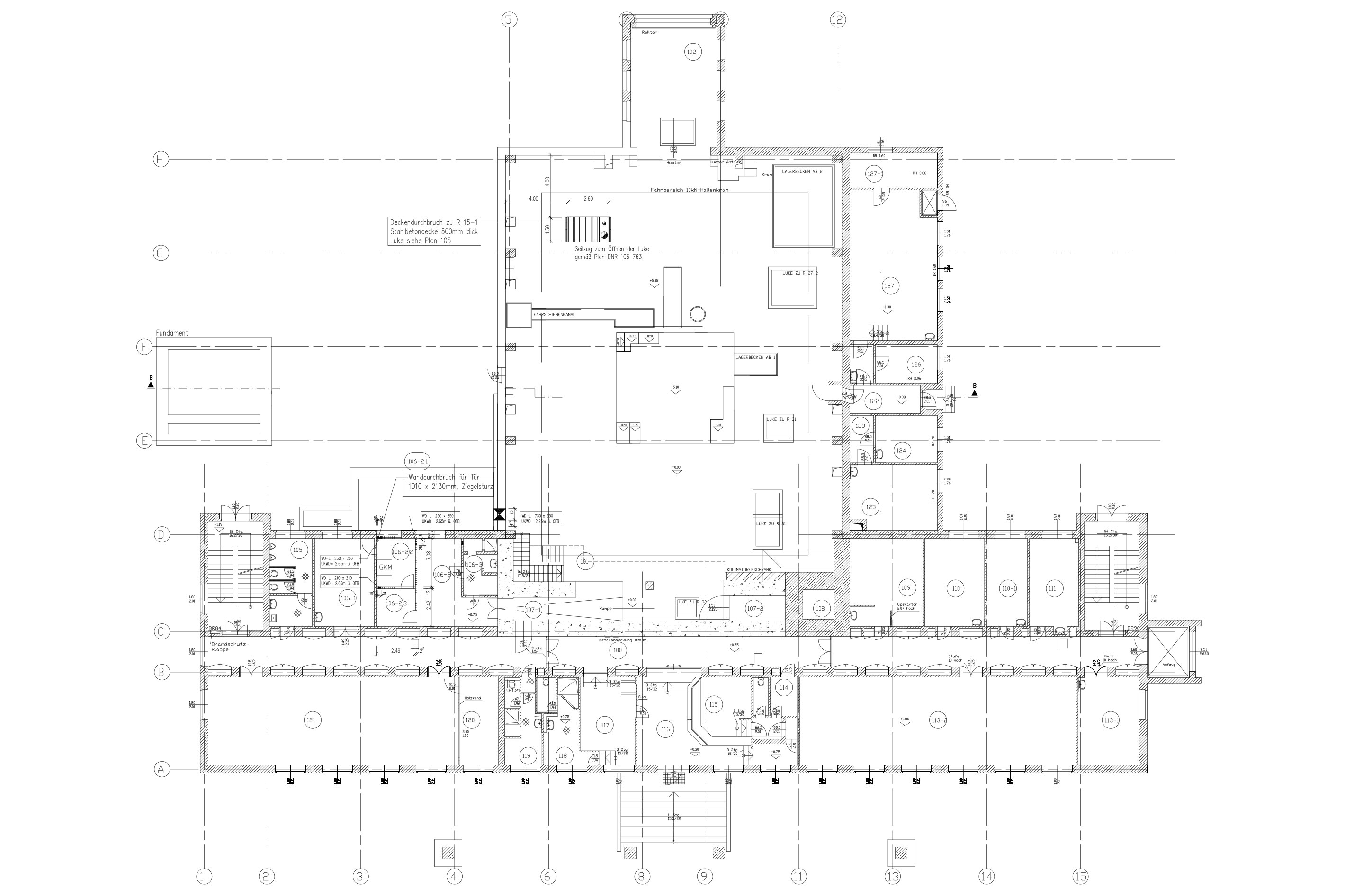
Der Gebäudekomplex besteht aus folgenden Bauwerken:
- Reaktorhalle: Krananlage, Untergeschoss, Reaktorblock
- Kopfbau: 5-geschossig mit Vorbau (aufgeständert eingeschossig)
- Filtergebäude: eingeschossig mit Abluftkamin

Leistungen Objekt- und Tragwerksplanung
Reaktorhalle:
- Einhausung des Reaktorblocks innerhalb der Reaktorhalle: Stahlkonstruktion mit Krananlage
- Nachweis der Decke über UG unter neuer Last infolge Einhausung und Abbruchtechnik;
- Ausbau von schwerer Stahlkonstruktion wie Reaktorbrücke und Behälter
- Abbruch der Heißen Zelle
- Standsicherheitsnachweis des Tragwerks bei Abbruch kontaminierter Baustruktur, Ausweisung von Abstützungen,
- Rückbau der Einhausung
Filtergebäude:
- Demontage des Abluftschornsteines
- Ausbau von teilweise bis 6 m unter Gelände liegenden Rohrleitungen mit diversen Sicherungsmaßnahmen
Gesamtkomplex:
- konventioneller Abbruch 34.200 m³





