In den 1970er Jahren planten Architekt Matthias Böhme und Statiker Klaus Wehrenpfennig das IPROconsult-Gebäude in der Dresdner Schnorrstraße in einer besonderen Bauweise
Rückblende
Das tägliche Leben in der DDR in der zweiten Hälfte der 1970er Jahre: Konsum- und Investitionsgüter für die Bevölkerung wurden verstärkt produziert, der Wohnungsbau erlebte seine Boomphase. Für Architekten in Dresden gab es damals vier Betätigungsfelder:
- Wohungsbau beim Baukombinat Dresden, das unter anderem die Neubaugebiete in den Stadtteilen Prohlis und Gorbitz plante
- Gesellschaftsbau, der Schulen, Kindergärten aber auch den Kulturpalast verantwortete
- der kleine VEB Denkmalpflege, der beispielsweise den Zwinger sanierte
- Industriebau im VEB Bau- und Montagekombinat Kohle und Energie (BMK)
Hierzu gehörte der Kombinatsbetrieb FOPRO Dresden, Interimsname der IPRO Dresden in den 70er und 80er Jahren. 1975 hatten hier Architekt Matthias Böhme und Statiker Klaus Wehrenpfennig nach ihrem Diplom die Arbeit aufgenommen.
Der Neubau wird in einem Geheimprojekt geplant von jungen, engagierten Mitarbeitern

Um die mehr als 800 Mitarbeiterinnen und Mitarbeiter der FOPRO an einem Standort zu konzentrieren, entschied man sich 1976, einen großen Neubau zu errichten. Ein Grundstück stand in zentraler Lage in der Schnorrstraße zur Verfügung. Wie aber sollten die Planungen laufen in einem Haus mit allein 80 Architekten mit ihren eigenen Vorstellungen? Die Kombinatsleitung entschied: Der Neubau wird in einem Geheimprojekt geplant von jungen, engagierten Mitarbeitern. Architekt Matthias Böhme und Statiker Klaus Wehrenpfennig wurden Projektleiter – geschützt und unterstützt vom erfahrenen Abteilungsleiter Dieter Schulz. „Wir wurden von allen anderen ferngehalten, damit wir Entwurf und Planung durchziehen konnten“, erinnert sich Matthias Böhme. Ein Budget gab es anfangs nicht, grobe Flächenvorgaben waren hingegen vorhanden, die Arbeitsstättenrichtlinie musste angewendet werden. „Für Architekten-Arbeitsplätze gab es aber beispielsweise keine Kennzahlen. Deshalb ermittelten wir diese für die großen Reißbretter und die langen Regalflächen selbst bei uns im Haus“, erläutert der heute 67-Jährige.
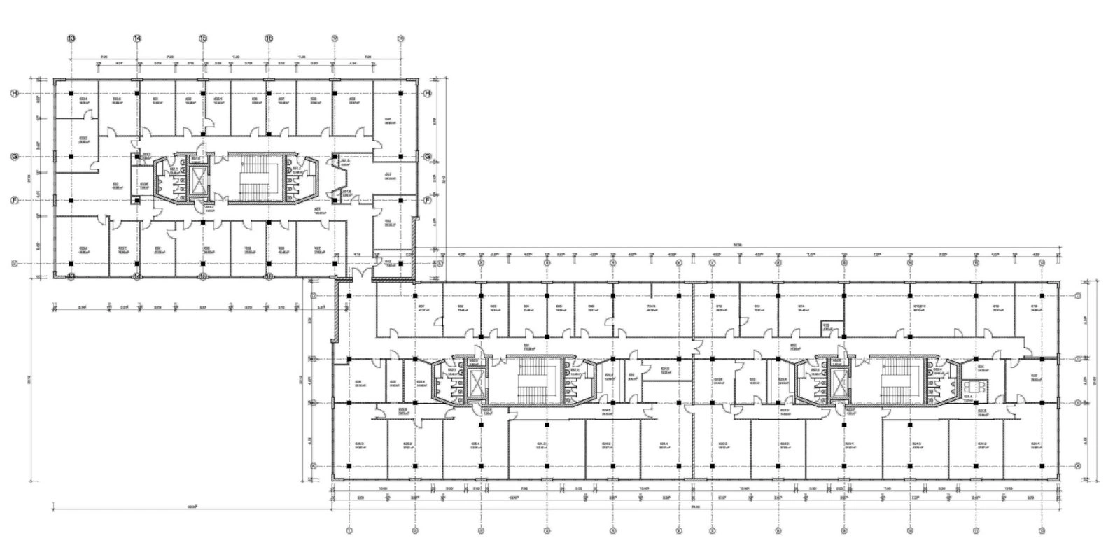
Flexibler Grundriss dank neuem Verfahren
Ziel der Planung war es, ein vom Grundriss flexibles Gebäude zu entwerfen. Die beiden Projektleiter wussten um damals moderne Baumethoden. Zudem hatten sie Kenntnis, dass das BMK über die zuvor erst einmal genutzte komplette Ausrüstung für das in den USA entwickelte ‚Lift-Slab-Verfahren‘ verfügte – und entschieden sich dafür. Bei diesem Hubdeckenverfahren werden die einzelnen Etagendecken am Boden übereinander gegossen: Nach dem Abbinden der ersten bewehrten Betondecke kommt eine Kunststofffolie als Trennschicht, auf der die nächste Decke gegossen wird. Alle sieben Geschossdecken des Bauwerks entstanden so im Paket. Zentraler Fixpunkt des Bauwerks ist dabei der Gleitkern – ein Turm mit Treppenhaus, Fahrstuhl, Versorgungsleitungen und Nassbereichen, wie Toiletten und Küchen. Um ihn herum stehen Stahlstützen in entsprechenden Aussparungen in den Hubdecken. An diesen Doppel-T-Trägern werden die Hubgeräte montiert – je Stütze ein Gerät. Mit vereinter Kraft ziehen sie die Hubdecken nach oben. In ihrer jeweiligen Endstellung wurden diese mittels spezieller Stahlplatten arretiert und anschließend verschweißt.
Das IPRO-Hauptgebäude in Dresden ist heute eines von ganz wenigen Bauwerken in Deutschland, das in der Lift-Slab-Bauweise entstand.
Dank dieser damals revolutionären Technologie konnten schlanke Decken auf eben solche Stützen gesetzt werden. Unterzüge entfielen – es entstand ein großer, frei gestaltbarer Raum. Einsparungen waren bei Schalung und Gerüst zu erzielen; hinzu kam die Zeitersparnis durch kontinuierliches Betonieren aller Decken am Boden. Diese sind aufgrund der Fertigungsmethode relativ elastisch, was das Anheben bei nicht völlig synchron laufenden Hubgeräten vereinfachte. Über einen Zeitraum von gut zehn Jahren wurde das Lift-Slab-Verfahren genutzt – durchsetzen konnte es sich jedoch nie. So ist das IPRO-Hauptgebäude in Dresden heute eines von ganz wenigen Bauwerken in Deutschland, das in dieser besonderen Bauweise entstand.





Außergewöhnliche Fassaden und Fenster
Matthias Böhme und Klaus Wehrenpfennig entwickelten auch weitere Elemente des Neubaus individuell und auf dem damaligen Stand der Technik. So entwarfen sie Fassadenplatten aus Leichtbeton zur Wärmedämmung auf der Innenseite und einer Vorsatzschale aus Schwerbeton. Letztere sollte wartungsfrei sein und erhielt deshalb eine Waschbeton-Oberfläche. Die Fertigung sollte das BMK-Betonwerk in Guben bei Eisenhüttenstadt übernehmen. Da es hier an den nötigen Spezialeinrichtungen für Waschbeton-Oberflächen mangelte, drückten Arbeiter die Kieselsteine von Hand in den Beton. Über den Außenwandplatten erstreckt sich ein Fensterband: Die einzelnen Fenster wurden in der damals maximalen Größe von 1,8 x 1,2 Metern gefertigt, haben außen einen eloxierten Alurahmen und innen einen Holzrahmen; zudem besitzen sie gute Wärmedämmwerte.
Insgesamt drei identische Gebäudeteile entstanden nach den Plänen der Projektleiter. Schaut man sich den Grundriss an, fällt die eigenwillige Form des jeweils zentralen Gleitkerns auf: Die äußeren Enden sind hier trapezförmig ausgebildet, was aufgrund der Stützenlage statisch notwendig wurde. Die Bauarbeiter unterstellten den Architekten jedoch, dass diese – als Teil des Bau- und Montagekombinat Kohle und Energie – zur Schikane der Arbeiter eine Brikettform entworfen hätten.
Ein technisches Pionierbauwerk
Baubeginn des ersten Abschnitts war 1979 – die Fertigstellung verteilte sich auf die Jahre 1983, 85 und 88. „Immer wenn auf anderen Baustellen die Kapazitäten an Personal und Maschinen nicht reichten, ruhte unser Neubau“, erklärt Böhme. Probleme beim Materialnachschub gab es hingegen beim bestens vernetzten Baukombinat nicht. Insgesamt drei Richtfeste und drei Einweihungsfeiern fanden statt – große Prominenz ließ sich dabei jedoch nicht blicken. Die alteingesessenen Architekten bemängelten beim Einzug die großen offenen Büros, ließen sich aber auf das Konzept der jungen Projektleiter ein. Bis heute ist Architekt Matthias Böhme stolz auf sein erstes großes Bauwerk, ein technisches Pionierbauwerk – auch wenn er in den folgenden 40 Jahren bis zu seiner Pensionierung noch viele teils spektakuläre Bauwerke plante.
Bis heute steht es in seiner Grundsubstanz aus Hubdecken, Fassadenelementen und Fensterbändern unverändert an seinem Platz.
Als 1988 der letzte Gebäudeteil bezogen war, arbeiteten zwischen 800 und 900 Menschen in dem so komplett ausgelasteten Neubau. Mehr als die Hälfte von ihnen waren sogenannte Technologen, deren Aufgaben nach der Wende von Baubetrieben übernommen wurden. Sie stellten auch die meisten Technologen bei sich ein. Damit standen große Teile des Gebäudes nach der Wende leer. Glücklicherweise gehörte das Gebäude auch nach Lesart der Treuhandgesellschaft der FOPRO und damit ihrer Nachfolgegesellschaft IPRO. So konnte das junge Unternehmen 1990 weite Teile der Flächen an andere Firmen vermieten und damit dieses einzigartige Bauwerk auch wirtschaftlich erhalten. Bis heute steht es in seiner Grundsubstanz aus Hubdecken, Fassadenelementen und Fensterbändern unverändert an seinem Platz. Lediglich die Grundrisse der Büro- und Arbeitsbereiche zwischen den schlanken Stützen wurden verändert – was dank Gipskartonwänden keinen hohen Aufwand darstellt.




