Building Information Modeling im kleinen Projekt mit großen Vorteilen
Building Information Modeling (BIM) und die damit verbundene Arbeitsweise ist zweifellos die Planungsmethode der Zukunft und für viele Architekten, Ingenieure und TGA-Fachplaner bereits heute ein etablierter Standard. Der Mehrwert der BIM-Methode und damit einer integrierten 3D-Planung liegen auf der Hand: die kollaborative Arbeit aller Beteiligten in einem intelligenten und stets aktuellen Gesamtmodell in einer gemeinsamen Umgebung sind die wesentlichen Faktoren für eine erfolgreiche Planung und Umsetzung.
Doch BIM hat bei vielen noch den Ruf, nur in "Greenfield"-Großprojekten effektiv eingesetzt werden zu können und messbare Mehrwerte zu generieren. Doch inwieweit stimmt das?
Das folgende Projektbeispiel eines Laborumbaus in Wuppertal zeigt, dass dieser Ruf unbegründet ist und dass BIM sich auch skaliert und bedarfsorientiert in kleineren Umbauprojekten effizient und vor allem mehrwerterzeugend einsetzen lässt.
Umbau eines Laborgebäudes
Bei diesem Projekt findet ein grundlegender Umbau der Verfahrenstechnik in einem Laborgebäude statt. Die Zielsetzung ist, die aktuellen gesetzlichen Anforderungen an Sicherheit und Gesundheitsschutz bei Tätigkeiten mit hochaktiven Wirkstoffen in technischen Einrichtungen der pharmazeutischen Industrie umzusetzen und damit die Arbeit der Labormitarbeiterinnen und -mitarbeiter sicherer und einfacher zu gestalten. Dazu werden Teile der Etage komplett entkernt und die technische Gebäudeausrüstung (Lüftung, Medienversorgung, Elektrotechnik) von Grund auf neu geplant und umgebaut. In den Laboren wird ein Großteil der Laborausstattung erneuert und auf den aktuellen Stand gebracht. Die Planung sollte dabei mit BIM erfolgen.
Der Einsatz der BIM-Methodik in einem Projekt dieser Art und Größe war zum Projektbeginn, Anfang 2018, am Standort Wuppertal eine Premiere für den Auftraggeber. Einheitliche und verbindliche BIM-Standards und -Spezifikationen waren zu diesem Zeitpunkt noch nicht vorhanden.
Grundlage für die BIM-Methode waren Vorläufer der heutigen BIM-Standards des Auftraggebers. Erkenntnisse aus diesem Projekt haben letztendlich wesentlich dazu beigetragen, dass die heutigen Projektvorlagen eine solide und erprobte Grundlage für Projekte aller Art bilden.
BIM-Rahmenbedingungen und Ziele
Ausschreibungsbestandteil war das BIM-Lastenheft in Form der sogenannten „Auftraggeberinformationsanforderungen“ (AIA), die spezifische Nutzer- und Projektanforderungen, klare Festlegung von Prozessen, Verantwortlichkeiten, BIM-Software und Schnittstellen definierten. Für die Umsetzung der BIM-Anforderungen und der planerischen Aufgaben wurde die IPROconsult-Niederlassung in Bergisch Gladbach beauftragt. Dabei erfolgte die BIM-Gesamtkoordination nicht wie üblich durch den Objektplaner, sondern durch die TGA-Abteilung, die den größten Planungsumfang hatte. In enger Abstimmung zwischen dem BIM-Manager des Auftraggebers und IPROconsult wurden die Anforderungen aus den AIA in einem projektspezifischen „BIM-Projektabwicklungsplan“ (BAP) überführt. Primäre BIM-Ziele des Projektes waren eine verbesserte Planungskoordination durch Nutzung eines 3D-Gesamtmodells aller Gewerke, verbesserte Qualität und Aktualität der 2D- und 3D-Planungsergebnisse und mehr Transparenz in der Planung durch den Einsatz einer gemeinsamen Projektplattform - „Common Data Environment“ (CDE). Weitere wesentliche, für den Labornutzer relevante BIM-Ziele waren eine verbesserte Funktionalität der Gebäudenutzung durch virtuelle Begehungen, Prüfung von Zugänglichkeiten und Bedienbarkeiten der Laborausstattung und eine standardisierte Übergabe der geprüften und freigegebenen 2D- und 3D-Planungsdokumentation.
Das Projekt verfolgte einen closed BIM-Ansatz unter Zuhilfenahme der Software Autodesk Revit. Die Übergabe der Daten erfolgte somit nativ als auch per IFC-Schnittstelle. Um die Umsetzung der Vorgaben sicherzustellen, war der BAP Vertragsbestandteil des Vorhabens und wurde über die Projektdauer fortgeschrieben.
Präzise Planung zu Projektbeginn
Die Umsetzung von BIM-Projekten bedarf einer präzisen Planung zum Projektbeginn. Datengrundlagen, Schnittstellen und Arbeitsumgebungen müssen vollständig und genau geklärt werden, bevor mit der Erstellung der Modelle begonnen wird. Der in diesem Projekt vorgefundene Datenbestand beruhte auf inhomogenen 2D- und 3D-Daten aus diversen Autorenprogrammen, die zunächst in ein einheitliches Datenformat überführt werden mussten. Dazu gehörten die Nachmodellierung des Bestandes der TGA sowie Ergänzungen im Architekturmodell, um die geforderten Engineering-BIM-Anwendungsfälle der Modellberechnung und -koordination belastbar umzusetzen und Mehrwerte zu generieren. Dabei wurde darauf geachtet, dass die „Revit-Standards“ des Auftraggebers in das Revit Template der IPROconsult übertragen und angewendet wurde. Erkenntnisse über Anwendung der Revit-Standards aus diesem und weiteren Projekten haben dazu beigetragen, dass diese weiterentwickelt und verbessert werden konnten. Mittlerweile sind die Revit-Standards des Auftraggebers als verbindlicher Standard verfügbar und kommen in vielen Projekten zum Einsatz.
Das Modell der Neuplanung beinhaltete neben den Leitungen der Raumlufttechnik und medizinischen Gasen (u. a. Sauerstoff, Helium, Stickstoff) auch die Laboreinrichtung wie Gefahrenschränke, Augenduschen, Arbeitstische und Medienschränke zum Regulieren der Durchflussmengen. Im Unterschied zur klassischen Planung, wo ein Schema erzeugt und im Schema gerechnet wird, erfolgte hier die Berechnung modellbasiert. Das bedeutet, dass mit den realen Geometrien der Leitungen und Räume technische Berechnungen wie Heiz- und Kühllast, Volumenstrom oder Druckverluste berechnet wurden. Diese Berechnungen wurden mit Spezialsoftware aus dem Bereich der technischen Gebäudeausrüstung durchgeführt. Der Datenaustausch erfolgte verlustfrei und bidirektional über herstellerneutrale Formate (gbXML). Die Berechnungsergebnisse ließen sich in die Modellelemente zurückführen, sodass für den späteren Nutzer eine vollständige Informationsquelle in Form des 3D-Gesamtmodells vorliegt. Somit bildete das 3D-Modell für die meisten Berechnungsergebnisse die zentrale Informationsquelle, in der BIM-Methodik die sogenannte „Single Source of Truth“. Berechnungsfehler durch händische und fehleranfällige Datenübertragung und durch Nutzung von nicht aktuellen geometrischen Daten waren dadurch auf ein absolutes Minimum reduziert.
Automatisierte Bauteillisten
Die Ausgabe der Berechnungen in Bauteillisten erfolgt automatisiert aus dem 3D-Modell, womit die Konsistenz der Daten gewährleistet ist. In Summe wurden 32 unterschiedliche Bauteillisten aus dem Modell erzeugt, welche als Grundlage für die Erstellung der Leistungsverzeichnisse genutzt wurden. Dazu gehörten u.a. das Aufmaß für Luftkanaldämmung nach DIN 18421, Aufmaß der Luftkanäle nach DIN 18379, Stücklisten für Luftdurchlässe, Formteile und Komponenten, Medienverbraucher, Rohrzubehör, Einbindungspunkte, Heiz- und Kühllast. Auch bei diesen BIM-Anwendungsfällen war das 3D-Modell stets die zentrale Informationsquelle („Single Source of Truth“).
Neben den Berechnungsergebnissen waren die Anlagenstruktur Kennzeichen (AKZ) sowie Einbindungspunkte Bestandteil der Informationsanforderungen an die Modellelemente. Insgesamt wurden 233 Übergabepunkte im Modell verortet und mit AKZ-Nummern versehen. Um einen weiteren Mehrwert für die Bauausführung zu erzeugen, wurden mittels visueller Programmierung mit Dynamo jedem Punkt der Raumname und die Raumnummer sowie die X-, Y- und Z-Koordinate zugewiesen, um die Bauteile und die Einbindungspunkte auf der Baustelle eindeutig zu identifizieren.
Ein weiterer wichtiger BIM-Anwendungsfall für das Projekt und gleichzeitig enormer Mehrwert gegenüber der herkömmlichen Planung in 2D ist das Auffinden von Kollisionen durch computergestützte Automatismen. Das Kollisionsmanagement unterstützt Projektleiter und Planer dabei, Kollisionen früh zu erkennen und zu beseitigen, um Verzögerungen durch Änderungen und Anpassungen auf der Baustelle zu vermeiden.
Durch die Bearbeitung aller Gewerke in 3D konnten bereits bei der Modellierung Kollisionen durch die Planer erkannt und vermieden werden. Zu bestimmten Zeitpunkten wurde eine automatisierte Kontrolle mit Autodesk Navisworks durchgeführt und ein Kollisionsbericht erstellt. Für diesen Zweck wurde eine Kollisionsmatrix erzeugt, welche die Prüfungsergebnisse nach Disziplinen einordnet und somit eine bessere Übersicht zum aktuellen Status, der Gewerkezuordnung und Nachverfolgung mit sich bringt. Allein zwischen Medienleitungen und Lüftungskanälen wurden während der Projektdauer 157 Kollisionen beseitigt. Vor der Durchbruchsplanung lag die Anzahl der Kollisionen von Medienleitungen und Wänden bei 398 (auf einer Etage). Durch die hohe Dichte an Leitungen und Lüftungskanälen und eine parallele Planung der unterschiedlichen Gewerke konnte nicht gänzlich verhindert werden, dass Kollisionen im Planungsmodell erzeugt wurden. Jedoch wurden durch die Kollisionsprüfung alle Überschneidungspunkte identifiziert und behoben. Die meisten davon hätten bei einer klassischen 2D-Planung nicht rechtzeitig oder sogar überhaupt nicht erkannt werden können und somit zu enormen Verzögerungen auf der Baustelle geführt.
Zusammenarbeit und Kollaboration mit BIM 360
Zu den wichtigsten Kernaspekten der BIM-Methodik gehört die modellbasierte Zusammenarbeit und Kollaboration sowie die Wahrung des „Single Source of Truth“-Ansatzes. Hierzu ist es erforderlich, ein sogenanntes „Common Data Environment“ (CDE) zu verwenden. CDEs sind Projektplattformen, auf denen alle Projektinformationen, Dokumente, Pläne und Modelle abgelegt werden und allen Beteiligten in der aktuellsten Version zur Verfügung stehen.
Für das Projekt wurde das cloudbasierte Tool BIM 360 von Autodesk verwendet. Das Tool wurde durch den Auftraggeber bereitgestellt und ermöglichte dem Projektteam und allen externen Beteiligten, gemeinsam auf einer Plattform zu arbeiten - unabhängig von Standort oder Endgerät und ohne Installation. Mit BIM 360 wurde nicht nur eine Plattform für einen nachverfolgbaren Daten- und Informationsaustausch zwischen allen Projektbeteiligten bereitgestellt, sondern die Plattform ermöglichte auch Projektprozesse wie Model- und Design-Reviews, Freigabe und Genehmigung von Planungsdokumenten sowie die Durchführung eines Aufgabenmanagements.
In der BIM-Abwicklungsplanung (BAP) wurde vereinbart, dass wöchentliche Modell- und Zeichnungsübergaben durchgeführt werden. Dadurch konnte der Auftraggeber immer den aktuellen Stand der Planung einsehen, frühzeitig Entscheidungen treffen und somit späte, kostenintensive Änderungen vermeiden. Anhand der Anzahl der Aufgaben im Projektverlauf (siehe Abbildung), die über BIM 360 erstellt und abgearbeitet wurden, lässt sich gut erkennen, dass es in diesem Projekt gelungen ist, späte Änderungen zu vermeiden und den größten Abstimmungsprozess sowie Design Review in frühe Projektphasen zu verlagern.

Für Projektbeteiligte, die mit Revit arbeiten, bietet BIM 360 eine weitere äußert nützliche Funktion. Beim Upload der Revit Modelle werden alle relevanten Pläne und 3D-Ansichten automatisch extrahiert und bereitgestellt. Ein zeitraubender wöchentlicher Export und Upload von PDF-Plänen und die Erstellung des Navisworks-Gesamtmodells sind somit nicht notwendig. Bereits ein Vergleich nur unter Berücksichtigung des TGA Revit Modells zeigt, wie viel Zeit die gewählte CDE der IPROconsult erspart hat. Hier eine Analyse „mit“ und „ohne“ Revit und BIM 360.

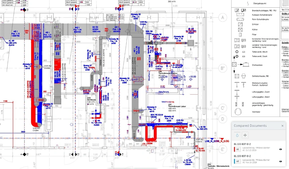
Für den Auftraggeber bietet die Plattform zudem die Möglichkeit, verschiedene Planungsstände (2D und 3D) automatisch zu vergleichen und die Änderungen (neue, verschobene oder gelöschte Elemente) zu highlighten. Dadurch konnte der Auftraggeber schnell und effizient Änderungen nachvollziehen und die Abarbeitung der Aufgaben überprüfen. Klassische Änderungswolken waren demzufolge obsolet.


Das gesamte Projektteam hat zu großen Teilen papierlos gearbeitet. Alle Plandokumente, einschließlich Aufgaben und Markierungen, verblieben über die gesamte Planungsphase in der zentralen Datenablage. Typische Fragen wie „Verwende ich das aktuelle Dokument?“, „Gibt es eine andere freigegebene Version?“ oder „Sind alle Kommentare von allen Beteiligten erfasst und in einem Dokument?“, sind dem Projektteam nahezu vollständig erspart geblieben.
Vorteile der BIM-Methode auch in kleinen Projekten
Das Projekt des Laborumbaus in Wuppertal zeigt, dass die BIM-Methode auch skalierbar und mehrwertbringend in kleineren Projekten zum Einsatz kommen kann. Die Vorteile lassen sich wie folgt zusammenfassen:
- Verbesserte Planungskoordination durch Nutzung eines 3D-Gesamtmodells aller Gewerke
- Transparente Zusammenarbeit auf einer gemeinsamen Projektplattform auf Basis des stets aktuellen Stands der Planungsdokumente und dadurch frühzeitiger Einfluss auf das Design
- Verbesserte Funktionalität der Gebäudenutzung durch Prüfung von Zugänglichkeiten und Bedienbarkeiten der Laborausstattung im realistischen 3D-Modell
- Frühzeitige Erkennung und Beseitigung von Kollisionen, weniger Verzögerungen durch Änderungen auf der Baustelle
- Modellbasierte Berechnungen (Heiz- und Kühllast, Volumenstrom oder Druckverluste) mit dem 3D-Modell als zentrale Informationsquelle
- Weniger Berechnungsfehler durch händische Datenübertragung oder durch Nutzung von nicht aktuellen geometrischen Daten
- Modellbasierte Bauteillisten als Grundlage für die Erstellung der Leistungsverzeichnisse
- Signifikante Zeitersparnis bei Bereitstellung der 2D- und 3D-Planungsergebnisse
- Enorme Arbeitserleichterung durch automatischen Versionenvergleich verschiedener Planungsstände von Zeichnungen und Modellen
- Workflows wie Zeichnungsprüfungen (Markierungen, Kommentare, Aufgaben) und Freigaben papierlos, transparent und nachverfolgbar in der cloudbasierten Projektplattform
- Keine inhomogene Datensätze bei Übergabe an Nutzer durch Anwendung standardisierter Software, Konfigurationen und Formate
Aussichten
Aktuell befindet sich das Projekt noch in der Ausführungsphase. Die Baustelle wird voraussichtlich in 2021 abgeschlossen sein. Parallel wird daran gearbeitet ein As-Built Modell und Dokumentation zu erstellen. An den Nutzer wird am Ende die gesamte BIM-360-Projektumgebung einschließlich der gesamten Projektdokumentation übergeben. Informationsverlust bei der Übergabe wird damit ausgeschlossen. Alle Daten werden in den vereinbarten nativen und Standarddateiformaten übergeben. Bei allen zukünftigen Umbaumaßnahmen lässt sich die Plattform erneut für weitere Planungspartner und Projektteams öffnen und alle Informationen stehen zur weiteren Bearbeitung zur Verfügung.

